Ακολουθήστε το Kriti360 στο Facebook για να μην χάνετε είδηση!

Στη συνεδρίαση της 17/4 της Επιτροπής Εκτελεστών Διαθήκης Μαλινάκη, που έγινε με την παρουσία της Τεχνικής Υπηρεσίας του ΓΝ Χανίων, παρουσιάσθηκε από τον αρχιτέκτονα Ζαχαρία Πιστόπουλο και τους συνεργάτες του, η ολοκληρωμένη αρχιτεκτονική μελέτη της επέκτασης της Ψυχιατρικής Κλινικής του ΓΝ Χανίων.

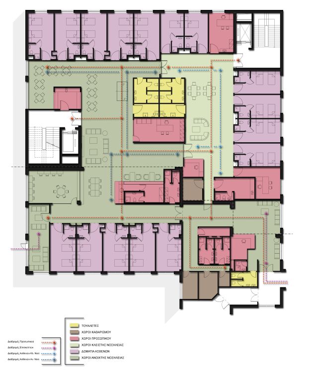
Σύμφωνα με τη μελέτη η συνολική δυναμικότητα της Κλινικής θα είναι 30 κλίνες, 20 στην ανοικτή νοσηλεία και 10 στην κλειστή νοσηλεία, αντί των 16 συνολικά κλινών που διαθέτει σήμερα.Η Νέα Ψυχιατρική  κλινική θα αποτελείται από το σημερινό κτίριο της μονάδας AIDS, με νέα διαρρύθμιση, και ωφέλιμο χώρο 300 τ.μ. ενώ θα κατασκευαστεί προσθήκη κατ΄ επέκταση του υπάρχοντος κτιρίου, της οποίας η επιφάνεια, φτάνει τα 700 τ.μ. ωφέλιμων χώρων.

Συνοπτικά οι πιο σημαντικές αλλαγές που προβλέπονται είναι :

  • Λειτουργικός διαχωρισμός των Λοιμωδών από την Ψυχιατρική.
  • Χώροι προσωπικού στο ισόγειο της κλινικής, σε λειτουργική κεντρική διάταξη.
  • Δημιουργία κεντρικών κοινόχρηστων χώρων φιλοξενίας δραστηριοτήτωνβορειοδυτικά, όπου υπάρχει φυσική ελεύθερη θέα.(τραπεζοκαθίσματα για φαγητό αλλά και για επιτραπέζια παιχνίδια, καθιστικό για TV – Video, κ. ά.)
  • Δημιουργία χώρου εργοθεραπείας στο ισόγειο.
  • Δημιουργία χώρου έκθεσης του δωρητή.
  • Φυσικό φωτισμό των κεντρικών χώρων από νότιες τζαμαρίες αξιοποιώντας και τη θέα προς τον λόφο της Μαλάξας από το μπαλκόνι του Α΄ ορόφου.
  • Διαμόρφωση του χώρου της πυλωτής με 21 θέσεις στάθμευσης και χώρο στάθμευσης μηχανών και ποδηλάτων.

Σε εξέλιξη βρίσκεται η στατική μελέτη ενώ ξεκινούν άμεσα και οι μηχανολογικές μελέτες, ώστε σύντομα οι μελετητές να περάσουν στο τελικό στάδιο, δηλαδή τις μελέτες εφαρμογής.